Jachranka · ul. Wspólna · gm. Serock

AVANTHOME

Nowoczesne domy szeregowe nad Zalewem Zegrzyńskim

Sprawdź ofertę

O inwestycji

Osiedle na Wspólnej to kameralna inwestycja w Jachrance — 4 domy w zabudowie szeregowej, łącznie 8 niezależnych lokali mieszkalnych. Nowoczesna architektura łączy się tu z przemyślanym układem pomieszczeń na dwóch kondygnacjach.

Każdy lokal o powierzchni użytkowej ok. 167 m² oferuje przestronny salon z kominkiem, otwartą kuchnię, gabinet, 3 sypialnie z garderobami, 3 łazienki oraz garaż w bryle budynku. Doskonałe miejsce dla rodziny 2+2 lub większej.

Wizualizacja domu AVANTHOME — Jachranka
8 Lokali mieszkalnych
167 m² Powierzchnia lokalu
8 lokali W inwestycji
35 km Do centrum Warszawy

Lokalizacja

Jachranka — tuż nad Zalewem Zegrzyńskim

Osiedle na Wspólnej to miejsce stworzone dla tych, którzy pragną odpocząć od miejskiego zgiełku, nie rezygnując z komfortu codziennego życia. Kameralne otoczenie zieleni sprzyja relaksowi, a dogodna komunikacja pozwala w krótkim czasie dotrzeć do Warszawy.

Inwestycja zlokalizowana jest w Jachrance przy ul. Wspólnej, w gminie Serock, województwo mazowieckie. To spokojna okolica nad Zalewem Zegrzyńskim, otoczona zielenią — zaledwie 35 km od centrum Warszawy.

W pobliżu: plaża nad Zalewem Zegrzyńskim, Aquapark, Hotel Narvil Wellness & SPA, szkoła, przedszkole, sklepy. Szybki dojazd do Warszawy trasą S8/DK61. Idealna lokalizacja dla osób pracujących w Warszawie, a szukających spokoju po pracy.

Architektura domów AVANTHOME — elewacja ogrodowa

Architektura i standard

Inwestycja wyróżnia się nowoczesną bryłą, ciekawym zastosowaniem okładzin elewacyjnych i dużymi przeszkleniami zapewniającymi stały dostęp światła. Dach dwuspadowy o kącie nachylenia 30°, wymiary budynku 14 × 20 m.

Standard wykończenia: technologia murowana (silikaty, gazobeton, ceramika), strop żelbetowy, okna trzyszybowe, ogrzewanie podłogowe, przygotowanie pod kominek. Garaż jednostanowiskowy w bryle budynku z bezpośrednim przejściem do domu.

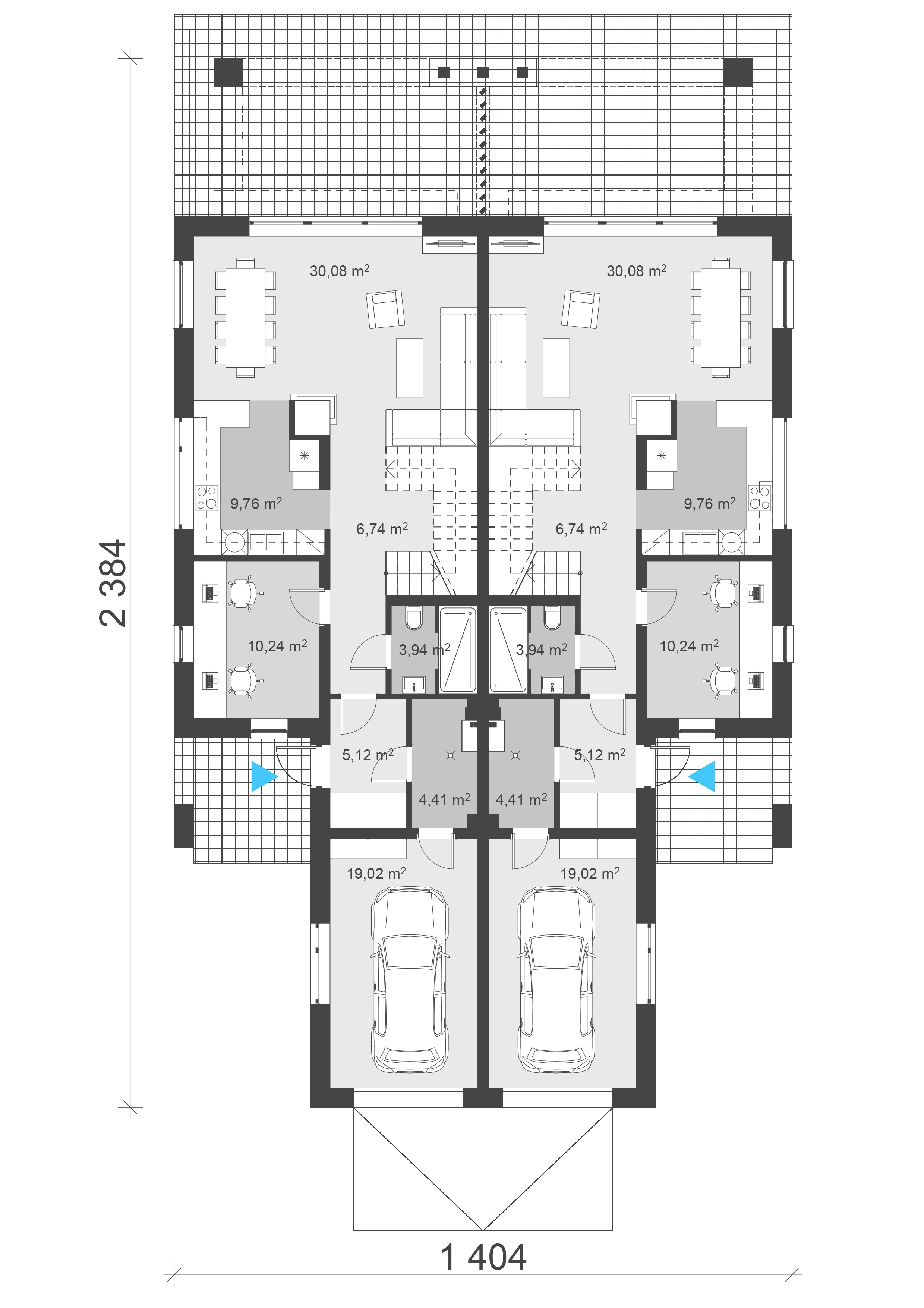
Rzuty kondygnacji

Przemyślany układ na dwóch kondygnacjach — 167 m² powierzchni użytkowej

Parter — 89,31 m²

Rzut parteru
  • Pokój dzienny z jadalnią — 30,08 m²
  • Kuchnia otwarta — 9,76 m²
  • Gabinet — 10,24 m²
  • Łazienka z prysznicem — 3,94 m²
  • Wiatrołap — 5,12 m²
  • Pom. gospodarcze — 4,41 m²
  • Garaż — 19,02 m²
↓ Pobierz rzut parteru

Poddasze — 77,74 m²

Rzut poddasza
  • Sypialnia główna z garderobą — 15,66 m²
  • Łazienka przy sypialni — 5,20 m²
  • Pokój 1 z garderobą — 14,33 m²
  • Pokój 2 z garderobą — 10,34 m²
  • Łazienka ogólna — 7,18 m²
  • Pralnia — 4,48 m²
↓ Pobierz rzut poddasza

Poznaj nasze atuty

Każdy detal został przemyślany z myślą o Twoim komforcie

Zalew Zegrzyński w pobliżu

Plaża, sporty wodne i tereny rekreacyjne w zasięgu spaceru

Garaż w bryle domu

Jednostanowiskowy z bezpośrednim przejściem do domu

Kominek narożny

Widoczny z salonu i jadalni — centrum strefy dziennej

Duże przeszklenia

Okna trzyszybowe, maksimum naturalnego światła

Trzy łazienki

Komfort, prywatność i wygoda na najwyższym poziomie każdego dnia

Ogrzewanie gazowe

Nowoczesny piec gazowy — wygodne, wydajne i ekonomiczne ogrzewanie

Zadaszony taras

Idealna strefa relaksu i wypoczynku o każdej porze roku

Strop żelbetowy

Wysoka trwałość i doskonała izolacja akustyczna między kondygnacjami

Gabinet na parterze

Wydzielona przestrzeń do pracy zdalnej, z dala od strefy dziennej

Garderoby przy sypialniach

Każda sypialnia wyposażona w osobną garderobę

Pralnia na poddaszu

Praktyczne pomieszczenie gospodarcze obok sypialni

SPA i Aquapark w pobliżu

Hotel Narvil Wellness & SPA w odległości 2 km

Oferta

4 domy, 8 lokali — wybierz swój wymarzony dom

Lokal Pow. użytkowa Pokoje Garaż Dostępność Status Cena
Dom 1 / A1 167 m² 4 + gabinet Tak od lipca 2026 Wolny 899 000 PLN 5 383,23 zł/m² Zapytaj →
Dom 1 / A2 167 m² 4 + gabinet Tak od lipca 2026 Wolny 899 000 PLN 5 383,23 zł/m² Zapytaj →
Dom 2 / B1 167 m² 4 + gabinet Tak od lipca 2026 Wolny 899 000 PLN 5 383,23 zł/m² Zapytaj →
Dom 2 / B2 167 m² 4 + gabinet Tak od lipca 2026 Wolny 899 000 PLN 5 383,23 zł/m² Zapytaj →
Dom 3 / C1 167 m² 4 + gabinet Tak w realizacji W budowie Zapytaj →
Dom 3 / C2 167 m² 4 + gabinet Tak w realizacji W budowie Zapytaj →
Dom 4 / D1 167 m² 4 + gabinet Tak w realizacji W budowie Zapytaj →
Dom 4 / D2 167 m² 4 + gabinet Tak w realizacji W budowie Zapytaj →

Podane ceny są cenami brutto. Szczegółowa oferta i karta lokalu dostępne podczas spotkania.

Harmonogram budowy

Etap I

Domy 1 i 2

A1 A2 B1 B2
Planowana realizacja lipiec 2026
1

Prace przygotowawcze

Zakup działki, projekt architektoniczno-budowlany, uzyskanie pozwolenia na budowę, przyłącza mediów.

2

Stan zero — Domy 1 i 2

Fundamenty żelbetowe, izolacje przeciwwilgociowe i termiczne, instalacje podposadzkowe.

3

Stan surowy zamknięty — Domy 1 i 2

Ściany nośne z silikatów, stropy żelbetowe, dach dwuspadowy 30°, stolarka okienna trzyszybowa.

4

Prace wykończeniowe — Domy 1 i 2

Instalacje wewnętrzne, tynki, wylewki, ogrzewanie podłogowe, elewacja, ocieplenie.

5

Odbiór i przekazanie kluczy

Odbiór urzędowy, pozwolenie na użytkowanie, przekazanie lokali właścicielom — lipiec 2026.

Etap II

Domy 3 i 4

C1 C2 D1 D2
Planowana realizacja październik 2026
1

Projekt i przygotowanie terenu

Projekt wykonawczy, organizacja placu budowy, wytyczenie geodezyjne, uzyskanie wymaganych pozwoleń.

2

Stan zero — Domy 3 i 4

Fundamenty żelbetowe, izolacje przeciwwilgociowe i termiczne, instalacje podposadzkowe.

3

Stan surowy zamknięty — Domy 3 i 4

Ściany nośne, stropy żelbetowe, dach dwuspadowy, stolarka okienna trzyszybowa.

4

Prace wykończeniowe — Domy 3 i 4

Instalacje wewnętrzne, tynki, wylewki, ogrzewanie podłogowe, elewacja. Zagospodarowanie terenu.

5

Odbiór i przekazanie kluczy

Odbiór urzędowy, pozwolenie na użytkowanie, przekazanie lokali właścicielom.

Jesteśmy do dyspozycji

Umów się
na spotkanie

Zapraszamy do biura sprzedaży lub bezpośrednio na plac budowy w Jachrance. Nasz doradca oprowadzi Cię po inwestycji i odpowie na wszystkie pytania dotyczące zakupu.

Telefon 503 998 857
Godziny otwarcia Pon – Pt: 9:00 – 17:00 Sobota: 10:00 – 14:00 Niedziela: Po umówieniu
Adres biura ul. Wspólna, 05-140 Jachranka, gm. Serock
Wpisz imię i nazwisko
Wpisz numer telefonu
Wpisz poprawny adres e-mail
Napisz do nas Zadzwoń